KĐT Park City tọa lạc tại Hà Đông, Hà Nội. So với hai khu biệt thự trên thì Park City gần với trung tâm thành phố Hà Nội. Đây cũng là KĐT đầu tiên tại Hà Nội. Với diện tích 77ha, KĐT gồm 15 tiểu khu với hơn 7.000 căn chung cư, biệt thự.
Được thiết kế bởi đội ngũ KTS hàng đầu A&A Home, mang tới cho gia chủ khuôn viên biệt thự tông màu trầm ấm, an lành!
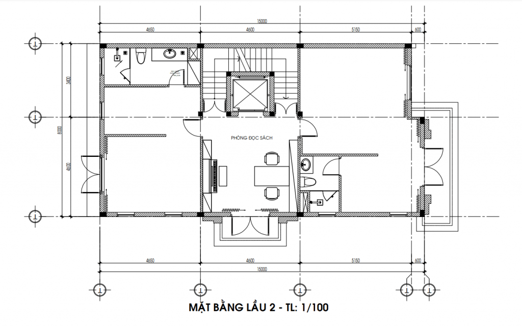
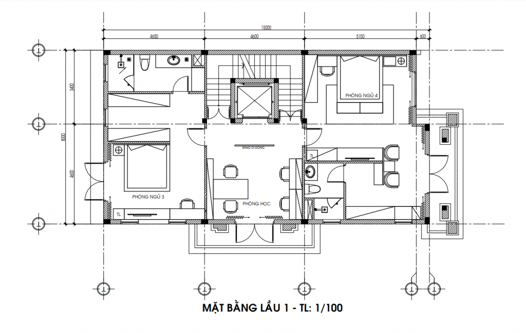
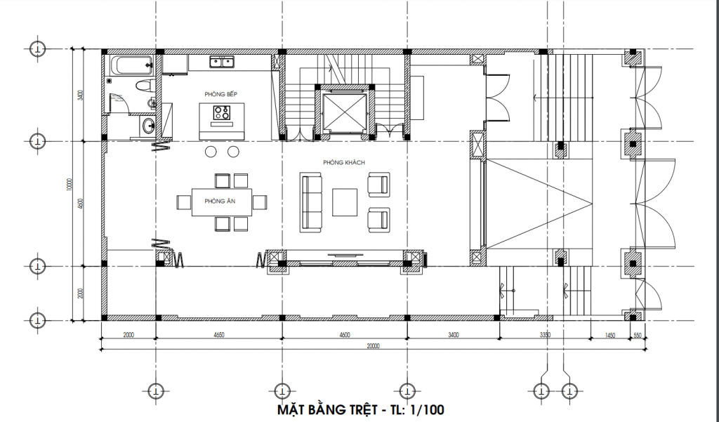
Thiết kế – Thi công công trình Biệt thư KĐT Park City – Anh chị Thịnh Hương

Về chúng tôi:
Với hơn 10 năm kinh nghiệm, A&A Home đã là một trong những công ty hoạt động nổi bật trong lĩnh vực tư vấn đầu tư xây dựng. Với những đội ngũ kiến trúc sư, kỹ sư năng động, sáng tạo, nhiệt huyết và có nhiều năm kinh nghiệm chúng tôi đã và đang khẳng định uy tín, thương hiệu của mình trong các lĩnh vực:
- Tư vấn thiết kế bản vẽ thi công, dự toán các công trình, dự án đầu tư xây dựng;
- Tư vấn thiết kế & thi công nội thất;
- Tư vấn lập dự án và quản lí dự án đầu tư xây dựng;
- Tư vấn thẩm tra thiết kế, dự toán các công trình, dự án đầu tư xây dựng;
- Tư vấn giám sát thi công xây dựng công trình.
CÔNG TY TNHH THIẾT KẾ VÀ XÂY DỰNG A&A HOME VIỆT NAM
- Trụ sở công ty: Nhà số 35, ngõ 61, phố Phạm Tuấn Tài, Phường Cổ Nhuế I, Quận Bắc Từ Liêm, Thành phố Hà Nội.
- Văn phòng đại diện 1: Số nhà 36, đường Nguyễn Văn Linh, Phường Liên Bảo, TP Vĩnh Yên, Tỉnh Vĩnh Phúc
- Văn phòng đại diện 2: Thôn Phú Thượng, Xã Tứ Yên, Huyện Sông Lô, Tỉnh Vĩnh Phúc
- Hotline: 0976360035
- Email: aahome.tkxd@gmail.com
- Website: https://aahome.vn/
